Building plot with a ready project and high investment potential in Mutxamel
- €850,000
Building plot with a ready project and high investment potential in Mutxamel
- €850,000
Overview
- Plots
- 0
- 0
Description
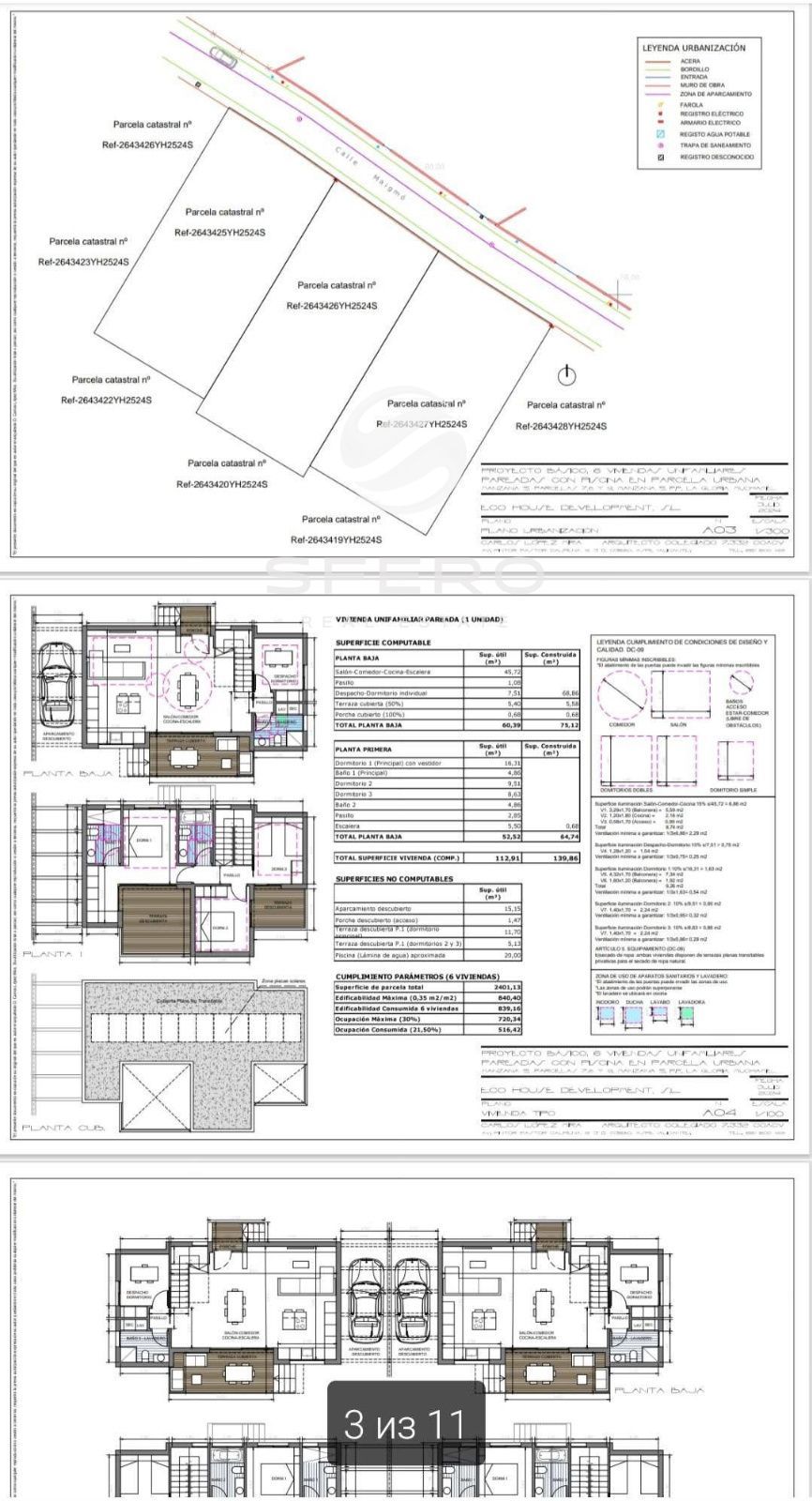
Independent urban plot available either as a standalone purchase or together with an approved project and full turnkey development. Suitable for private construction or an investment project. The property offers a flexible opportunity to create a bespoke home or a profitable development tailored to market demand. Its urban location ensures convenient access to infrastructure, making it a strong option for both end-users and investors.
Project (optional)
• Gated development of 6 villas
• Approx. 140 m² per house
Details
Updated on April 25, 2026 at 11:17 pm-
Price €850,000
-
Bedroom 0
-
Bathroom 0
-
Property Type Plots
-
Property Status Sale
Address
Open on Google Maps-
City: Mutxamel
-
State/county: Alicante
-
Country: Spain